◆帯広・十勝の中古住宅・売土地・賃貸アパート・マンション・貸家・店舗・事務所まで、なんでもおまかせください!!
買いたい
売買物件検索
借りたい
賃貸物件検索
不動産賃貸Q&A
売りたい
無料査定・買取
不動産クイック査定
インスペクションについて
貸したい
大家さん募集中
直したい
リフォームについて
会社概要
会社概要
店舗紹介
スタッフ紹介
blog 千夢のぼやき
その他のご案内
お客さまの声
過去の売買成約事例
プライバシーポリシー
業者向けページ
お問い合わせ
お問い合わせフォーム
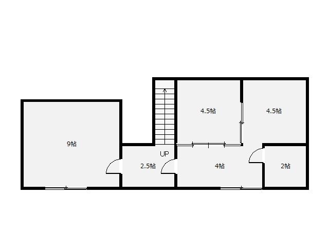
※広大な敷地!約227.94坪!
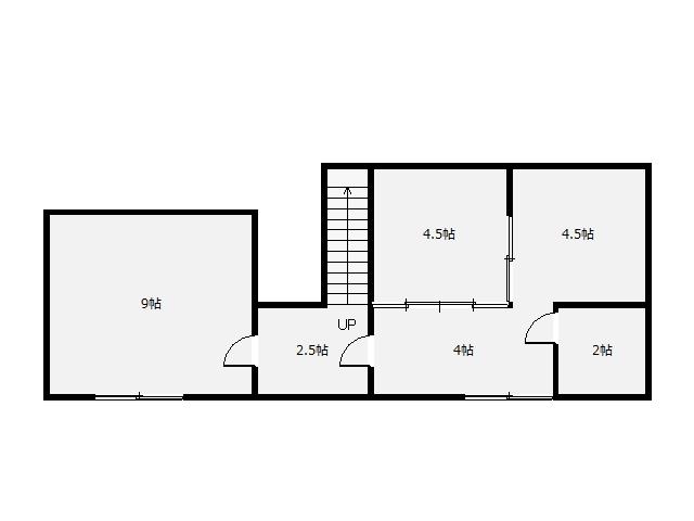
【4LDK+1LDK】
※広大な敷地!約227.94坪!
※二世帯住宅としての利用も可能です!
※地下も収納スペース豊富にあります!
※スーパーやドラッグストアまで約800m!
30,000,000円
物件詳細情報
所在地
帯広市西12条南31丁目4番地25
価 格
30,000,000円
交通機関
十勝バス 西12条31丁目停 歩4分
土地面積
753.55m2 (227.94坪)
建物面積
151.47m2 (45.81坪)
構 造
木造亜鉛メッキ鋼板葺地下1階付2階建
築 年
1986年
用途地域
第2種中高層住居専用地域
建ぺい率/容積率
60%/200%
間口/奥行
20.733m/33.50m
地 目
宅地
土地権利
所有権
道路付
東側 12.00m、南側 12.00m
現況/引渡
空室/相談
設 備
電気・上水道(公営)・下水道
学 区
花園小、第四中
取引態様
仲介
仲介手数料
1,056,000円
備 考
情報登録日:2026/05/24
(3759)
※掲載写真は全て撮影時点のものです。現況と異なる場合がございます。
お問い合わせはこちらのフォーム または お電話 0155-36-2477 までどうぞ
お問い合わせ内容
物件の詳細を知りたい
物件を実際に見てみたい
最新の空室状況を知りたい
条件に合う他の物件も紹介してほしい
その他質問など
※入力されませんと当店から返信ができませんので必ずご入力ください。
お手数ですが『chien.co.jp』ドメインからのメールを受信許可に設定されるようお願いいたします。
お名前
お名前(カナ)
ご住所
電話番号
FAX番号
メールアドレス
年齢
20代
30代
40代
50代
60代
70代
80代
90代
ご希望の連絡方法
指定しない
メール
電話
FAX