◆帯広・十勝の中古住宅・売土地・賃貸アパート・マンション・貸家・店舗・事務所まで、なんでもおまかせください!!
買いたい
売買物件検索
借りたい
賃貸物件検索
不動産賃貸Q&A
売りたい
無料査定・買取
不動産クイック査定
インスペクションについて
貸したい
大家さん募集中
直したい
リフォームについて
会社概要
会社概要
店舗紹介
スタッフ紹介
blog 千夢のぼやき
その他のご案内
お客さまの声
過去の売買成約事例
プライバシーポリシー
業者向けページ
お問い合わせ
お問い合わせフォーム
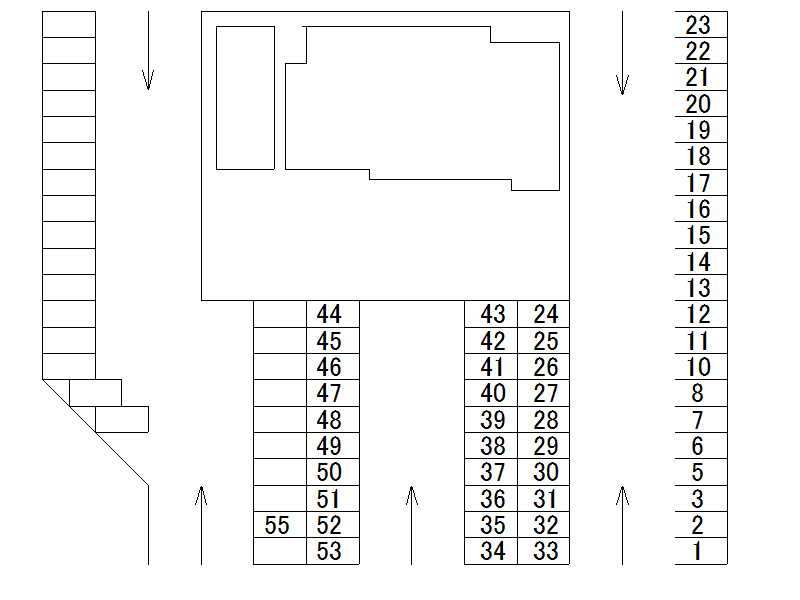
高田月極パーキング
5,000円
物件詳細情報
所在地
帯広市西9条南4丁目20番地
空き情報
11 ・ 13 ・ 14 ・ 15 ・ 16 ・ 27 ・ 29 ・ 36 ・ 38 ・ 40 ・ 6
必要経費概算
駐車料金
5,000円
その他費用(毎月)
150円
敷 金
保証料
5,000円
契約事務手数料
5,500円
必要経費合計
15,650円
情報登録日:2025/10/27
(08586-11)
※配置図面が現況と異なる場合、現況を優先させて頂きます。
お問い合わせはこちらのフォーム または お電話 0155-36-2477 までどうぞ
お問い合わせ内容
物件の詳細を知りたい
物件を実際に見てみたい
最新の空室状況を知りたい
条件に合う他の物件も紹介してほしい
その他質問など
※入力されませんと当店から返信ができませんので必ずご入力ください。
お手数ですが『chien.co.jp』ドメインからのメールを受信許可に設定されるようお願いいたします。
お名前
お名前(カナ)
ご住所
電話番号
FAX番号
メールアドレス
年齢
20代
30代
40代
50代
60代
70代
80代
90代
ご希望の連絡方法
指定しない
メール
電話
FAX
女性スタッフ希望
女性スタッフ対応を希望(女性お一人でのお部屋探しのみ)