◆帯広・十勝の中古住宅・売土地・賃貸アパート・マンション・貸家・店舗・事務所まで、なんでもおまかせください!!
買いたい
売買物件検索
借りたい
賃貸物件検索
不動産賃貸Q&A
売りたい
無料査定・買取
不動産クイック査定
インスペクションについて
貸したい
大家さん募集中
直したい
リフォームについて
会社概要
会社概要
店舗紹介
スタッフ紹介
blog 千夢のぼやき
その他のご案内
お客さまの声
過去の売買成約事例
プライバシーポリシー
業者向けページ
お問い合わせ
お問い合わせフォーム
小枝ビル
120,252円
(内消費税 10,932円)
物件詳細情報
所在地
帯広市東1条南11丁目18番地4
交通機関
築年/構造
1985年07月 (鉄筋コンクリート造)
間取り
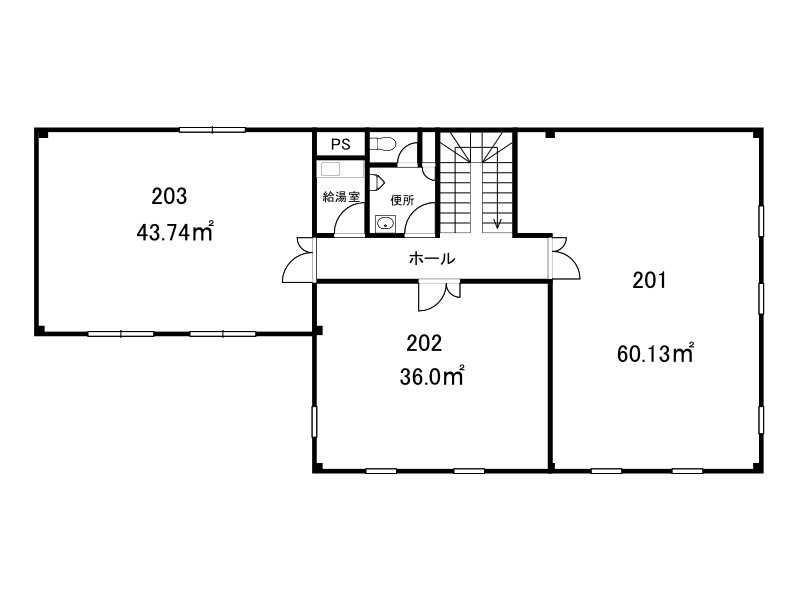
事務所 (60.13平米)
小学校
中学校
買 物
設 備
照明器具/トイレ(共用)/コンロ(共用)/湯沸器/暖房器具(灯油FF)/エアコン/飲用水(公営)/下水道/ガス(都市共用)/灯油タンク(集中(メーター検針))/駐車場(有料)
空き情報
203
必要経費概算
家 賃
109,320円
(消費税別途 10,932円)
管理費
12,754円
(消費税別途 1,275円)
上下水道料
駐車料金
10,000円
(消費税別途 1,000円)
2台目駐車料金
(非課税)
その他費用(毎月)
(非課税)
敷 金
327,960円
(非課税)
保証会社保証料
145,281円
(非課税)
礼 金
(非課税)
排水管洗浄料
住宅保険料(2年分)
(非課税)
その他費用(契約時)
(非課税)
仲介手数料
109,320円
(消費税別途 10,932円)
必要経費合計
738,774円
(税込)
情報登録日:2026/02/10
(01727-203)
※事業活動保険別途見積
※間取図面・設備概要・内観写真などが現況と異なる場合、現況を優先させて頂きます。
※駐車場、2台目駐車場については、物件の入居状況により本表示と異なる場合がございます。
お問い合わせはこちらのフォーム または お電話 0155-36-2477 までどうぞ
お問い合わせ内容
物件の詳細を知りたい
物件を実際に見てみたい
最新の空室状況を知りたい
条件に合う他の物件も紹介してほしい
その他質問など
※入力されませんと当店から返信ができませんので必ずご入力ください。
お手数ですが『chien.co.jp』ドメインからのメールを受信許可に設定されるようお願いいたします。
お名前
お名前(カナ)
ご住所
電話番号
FAX番号
メールアドレス
年齢
20代
30代
40代
50代
60代
70代
80代
90代
ご希望の連絡方法
指定しない
メール
電話
FAX
女性スタッフ希望
女性スタッフ対応を希望(女性お一人でのお部屋探しのみ)